Bartek B127



Dom całoroczny z bali drewnianych Bartek B127
Bartek B127 to nasz firmowy projekt. Jest to dom parterowy z użytkowym poddaszem, zaprojektowany w tradycyjnej konstrukcji bala prostokątnego. Nutkę nowoczesności wprowadza duży, wysoko zadaszony taras. Bartek B127 to idealna propozycja dla rodzin 4-osobowych, które poszukują naturalnego, zgrabnego i ekonomicznego domu. Projekt Bartek B127 posiada salon z aneksem kuchennym, gabinet, pomieszczenie gospodarcze, sypialnię, 2 pokoje, 2 łazienki, kotłownię oraz wiatrołap.Domy budujemy na podstawie indywidualnych projektów, powyższa oferta jest propozycją!
Przedstawiona oferta ma charakter informacyjny, nie stanowi oferty handlowej w rozumieniu Art.66 Kodeksu Cywilnego. Przedstawiony projekt jest własnością Firmy BARTEK. Wszelkie próby kopiowania projektu są zabronione.Zostaw swoje dane - skontaktujemy się z Tobą
Dane techniczne
Konstrukcja
Bal lity sosnowy 12 x 20 cm
Powierzchnia domu netto
126.56 m2
Minimalne wymiary działki
20,7 x 17,35 m
Wymiary zewnętrzne
12.7 x 9.35 x 7.71 m
Powierzchnia zabudowy
119 m2
Dane ogólne
Czas budowy
1-3 miesiące
Gwarancja
10 lat na konstrukcję budynku
Porównaj stany wykończenia
Pobierz ofertęStan
Do samodzielnego montażu
Cena od
155000 zł
+23% VAT
Stan
Surowy otwarty
Cena od
221000 zł
+8% VAT
Stan
Surowy zamknięty
Cena od
387000 zł
+8% VAT
Stan
Deweloperski
Cena od
567000 zł
+8% VAT
Rzuty
Lista Pomieszczeń
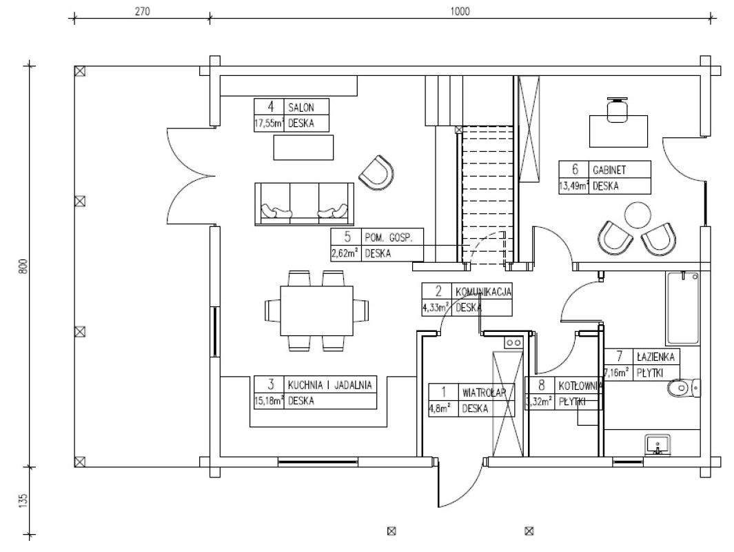
Parter
1. Wiatrołap 4,8m2
2. Komunikacja 4,33m2
3. Kuchnia i jadalnia 15,18m2
4. Salon 17,55m2
5. Pomieszczenie gospodarcze 2,26m2
6. Gabinet 13,49m2
7. Łazienka 7,16m2
8. Kotłownia 3,32m2
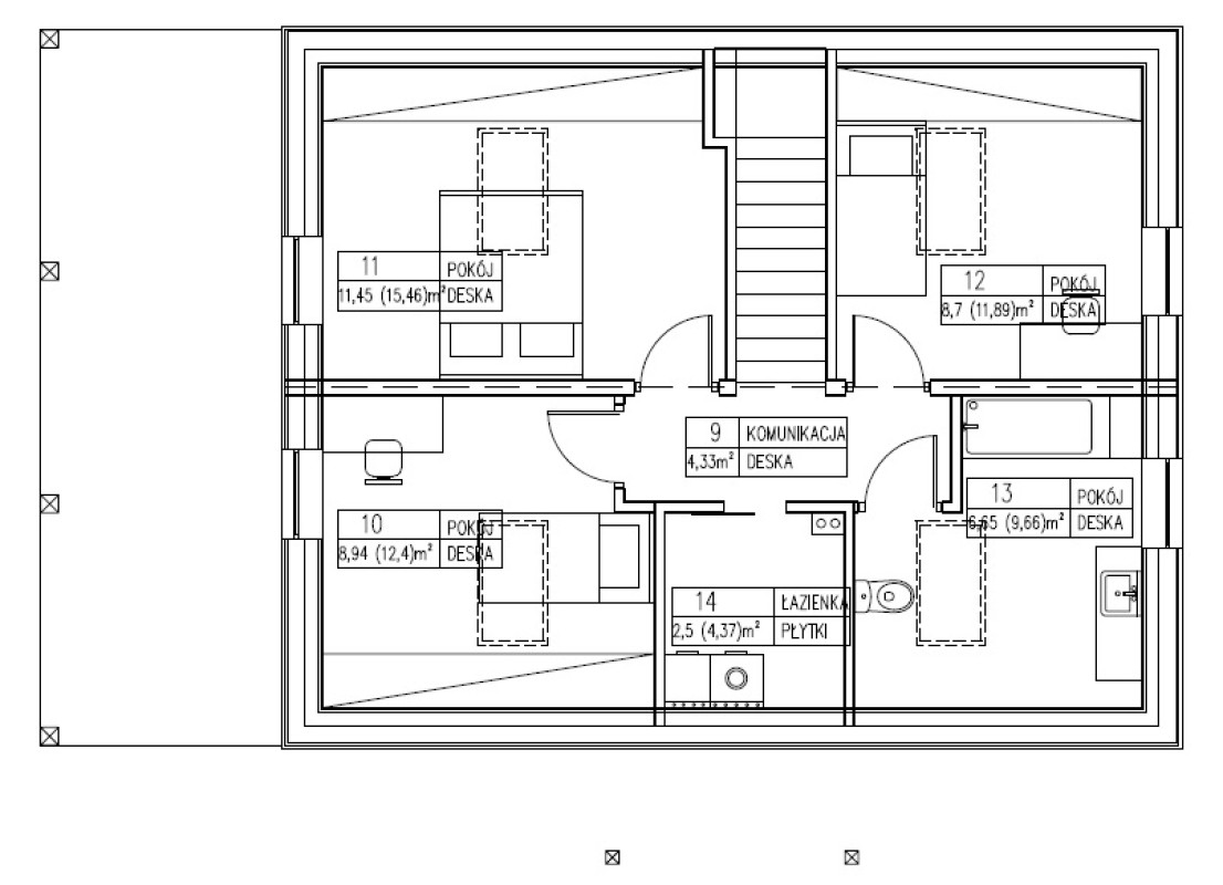
Poddasze
9. Komunikacja 4,33m2
10. Pokój 8,94 (12,4)m2
11. Pokój 11,45 (15,46)m2
12. Pokój 8,7 (11,89)m2
13. Łazienka 6,65 (9,66)m2
14. Pralnia 2,5 (4,37)m2



