Bartek B217






Dom całoroczny z bali drewnianych Bartek B217
Bartek B217 to jeden z naszych firmowych projektów. Jest to projekt dostosowany dla dużej rodziny 2+3 ceniącej sobie przestrzeń. Dom wykonany z bali prostokątnych z nutą skandynawskiego stylu. Jego niewątpliwym atutem jest duża weranda przy wejściu oraz zadaszony, przestronny taras przy wykuszu. Zaprojektowany na planie litery L. W bryle domu zaprojektowany został duży garaż. Projekt Bartek B217 posiada salon (z antresolą), jadalnię, kuchnię, pokój gościnny, garaż, spiżarnię pod schodami, schowek, sypialnię z własną łazienką i garderobą, 3 pokoje, 2 łazienki, pralnię, kotłownię, wiatrołap oraz 2 tarasy - wejściowy oraz od podwórza.Domy budujemy na podstawie indywidualnych projektów, powyższa oferta jest propozycją!
Przedstawiona oferta ma charakter informacyjny, nie stanowi oferty handlowej w rozumieniu Art.66 Kodeksu Cywilnego. Przedstawiony projekt jest własnością Firmy BARTEK. Wszelkie próby kopiowania projektu są zabronione.Zostaw swoje dane - skontaktujemy się z Tobą
Dane techniczne
Konstrukcja
Bal lity sosnowy 12 x 20 cm
Powierzchnia domu netto
217 m2
Minimalne wymiary działki
24,29 x 21,24 m
Wymiary zewnętrzne
17.29 x 13.24 x 7.78 m
Powierzchnia zabudowy
229 m2
Dane ogólne
Czas budowy
2-4 miesiące
Gwarancja
10 lat na konstrukcję budynku
Porównaj stany wykończenia
Pobierz ofertęStan
Do samodzielnego montażu
Cena od
250000 zł
+23% VAT
Stan
Surowy otwarty
Cena od
372000 zł
+8% VAT
Stan
Surowy zamknięty
Cena od
677000 zł
+8% VAT
Stan
Deweloperski
Cena od
999000 zł
+8% VAT
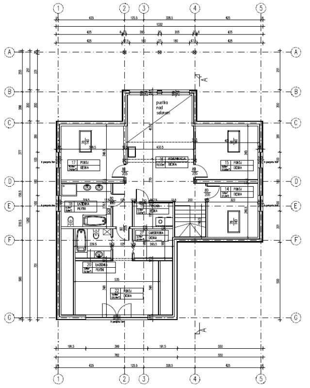
Rzuty
Lista Pomieszczeń
Parter
2. Garaż 29,72m2
3. Kotłownia 2,65m2
4. Wiatrołap 3,54m2
5. Komunikacja 11,04m2
6. Spiżarnia 1,61m2
7. Kuchnia 10,98m2
8. Szafa 1,54m2
9. Łazienka 3,63m2
10. Pokój 13,93m2
11. Salon 22,7m2
12. Jadalnia 14,07m2
Weranda 10,18m2
Taras 12,09m2
Poddasze
14. Pokój 7,95 (11,2)m2
15. Pokój 9,82 (13,85)m2
16. Antresola 19,93m2
17. Pokój 10,08 (14,19)m2
18. Łazienka 8,38 (8,9)m2
19. Pralnia 2,74 (3,27)m2
20. Łazienka 3,86 (4,34)m2
21. Garderoba 2,75 (4,65)m2
22. Sypialnia 19,46 (21,24)m2





