Bartek S75





Dom całoroczny w konstrukcji szkieletowej Bartek S75
Opis projektu:
Bartek S75 to jeden z projektów naszej firmy. Projekt stworzony głównie z myślą o rodzinach 2 + 2, wpasowujący się w obecne trendy. Jest to dom parterowy, który posiada wszystko to, co niezbędne: salon z aneksem kuchennym, łazienkę, wiatrołap, pomieszczenie gospodarcze, sypialnie oraz 2 pokoje. Bartek S75 ekonomiczny wariant dla każdej rodziny, który, dzięki swojej prostej bryle oraz uniwersalnym kolorom, wpasowuje się idealnie w każde otoczenie i nadaje się zarówno do zabudowy podmiejskiej, jak i wiejskiej.Domy budujemy na podstawie indywidualnych projektów, powyższa oferta jest propozycją!
Przedstawiona oferta ma charakter informacyjny, nie stanowi oferty handlowej w rozumieniu Art.66 Kodeksu Cywilnego. Przedstawiony projekt jest własnością Firmy BARTEK. Wszelkie próby kopiowania projektu są zabronione.Zostaw swoje dane - skontaktujemy się z Tobą
Dane techniczne
Konstrukcja
Szkieletowa
Powierzchnia domu netto
75.02 m2
Minimalne wymiary działki
19,24 x 15,44 m
Wymiary zewnętrzne
12.24 x 7.44 x 5.86 m
Powierzchnia zabudowy
91 m2
Dane ogólne
Czas budowy
1-2 miesiące
Gwarancja
15 lat na konstrukcję budynku
Porównaj stany wykończenia
Pobierz ofertęStan
Do samodzielnego montażu
Cena od
51500 zł
+23% VAT
Stan
Surowy otwarty
Cena od
105000 zł
+8% VAT
Stan
Surowy zamknięty
Cena od
227000 zł
+8% VAT
Stan
Deweloperski
Cena od
318500 zł
+8% VAT
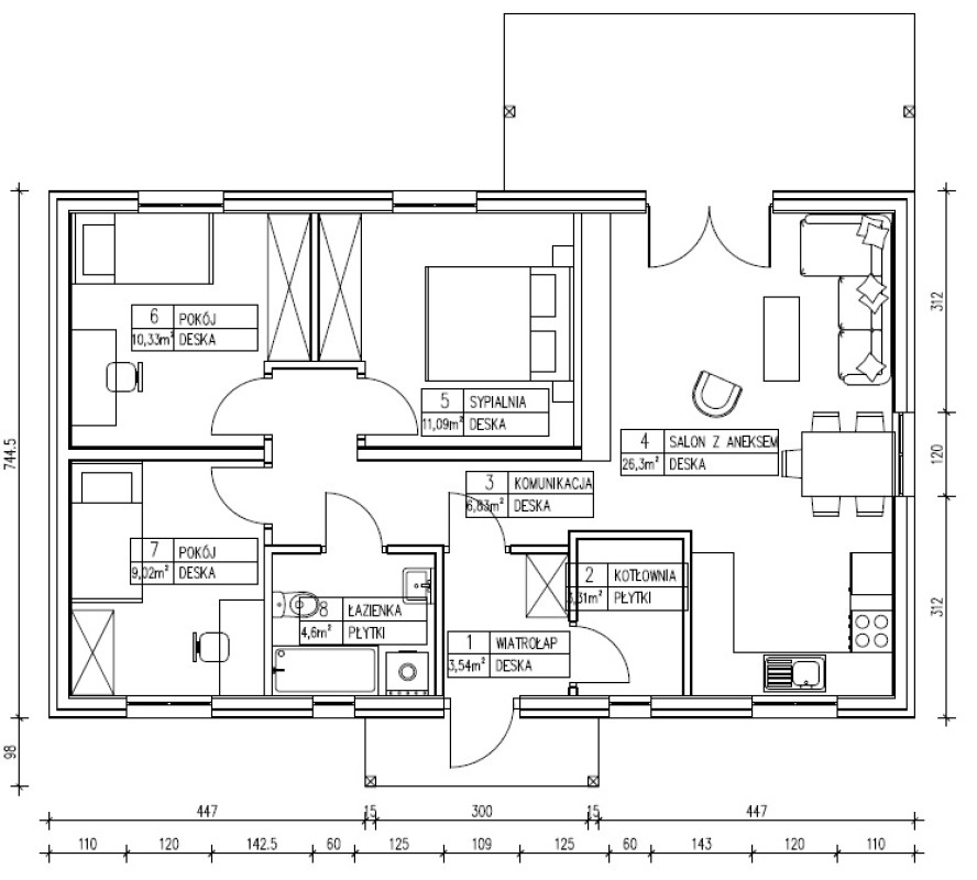
Rzuty
Lista Pomieszczeń
1. Wiatrołap 3,54m2
2. Kotłownia 3,31m2
3. Komunikacja 6,83m2
4. Salon z aneksem kuchennym 26,3m2
5. Sypialnia 11,09m2
6. Pokój 10,33m2
7. Pokój 9,02m2
8. Łazienka 4,6m2




