KA 98


Dom całoroczny w konstrukcji szkieletowej KA 98
Opis projektu:
Ka98 Sz to gotowy projekt domu z poddaszem użytkowym w technologii drewnianej. Na bocznej ścianie budynku zaprojektowano podwyższony taras, który częściowo zadaszono pergolą. Elewację wykończono jasnym tynkiem na parterze, zaś górną część domu okładziną drewnianą, która akcentuje odrębność kondygnacji. W styl domu idealnie wpisują się drewniane balustrady. Wejście główne wprowadza do zamkniętego wiatrołapu, w którego pobliżu zaprojektowano pomieszczenie gospodarcze. Pozostała część domu to przestronna strefa dzienna, która łączy salon z kuchnią. W pobliżu schodów znajduje się łazienka oraz dodatkowy pokój z prywatną łazienką. Poddasze wyodrębnia 3 sypialnie oraz dużą łazienkę.Domy budujemy na podstawie indywidualnych projektów, powyższa oferta jest propozycją!
Przedstawiona oferta ma charakter informacyjny, nie stanowi oferty handlowej w rozumieniu Art.66 Kodeksu Cywilnego. Przedstawiony projekt jest własnością biura projektowego, z którym współpracujemy.Zostaw swoje dane - skontaktujemy się z Tobą
Dane techniczne
Konstrukcja
Szkieletowa
Powierzchnia domu netto
142.9 m2
Minimalne wymiary działki
21,24 x 16,64 m
Wymiary zewnętrzne
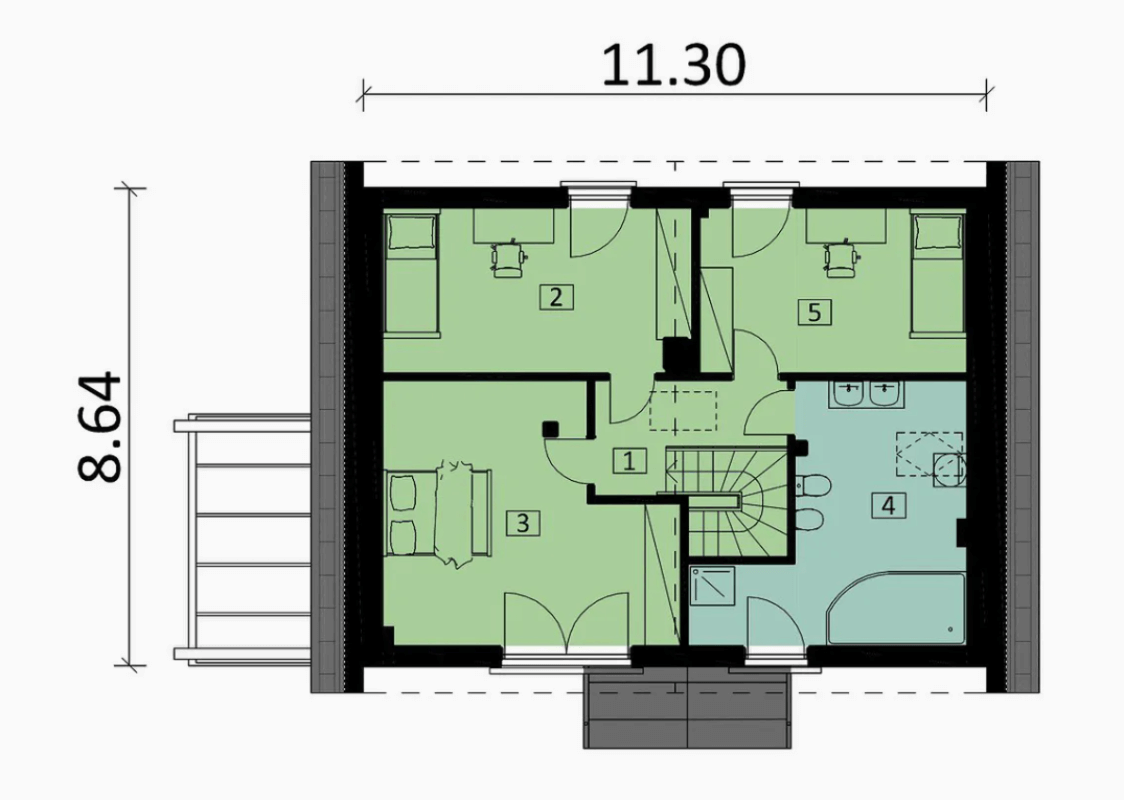
11.3 x 8.64 x 8.99 m
Powierzchnia zabudowy
97.63 m2
Dane ogólne
Czas budowy
2-4 miesiące
Gwarancja
15 lat na konstrukcję budynku
Porównaj stany wykończenia
Pobierz ofertęStan
Do samodzielnego montażu
Cena od
76000 zł
+23% VAT
Stan
Surowy otwarty
Cena od
144000 zł
+8% VAT
Stan
Surowy zamknięty
Cena od
342000 zł
+8% VAT
Stan
Deweloperski
Cena od
502000 zł
+8% VAT
Rzuty
Lista Pomieszczeń
Parter
1. Wiatrołap 5,02m2
2. Pokój dzienny + kuchnia 38,7m2
3. Korytarz + schody 7,89m2
4. Łazienka 4,87m2
5. Pokój 13,42m2
6. Łazienka 3,98m2
7. Pomieszczenie gospodarcze 6,08m2
Poddasze
1. Hall 5,36m2
2. Pokój 13,87m2
3. Pokój 18,07m2
4. Łazienka 13,74m2
5. Pokój 11,9m2


