Nowoczesny Bartek



Dom całoroczny w konstrukcji szkieletowej Nowoczesny Bartek
Opis projektu:
Nowoczesny Bartek to kompaktowy projekt w stylu stodoły. Na niewielkiej powierzchni zabudowy mieści się funkcjonalna przestrzeń. Parter składa się z wiatrołapu, gabinetu, kotłowni, przestronnej łazienki oraz salonu z aneksem kuchennym i jadalnianym. Poddasze to strefa sypialniana, która mieści w sobie przestronną sypialnię z garderobą oraz dwa dodatkowe pokoje, a także łazienkę. Przestrzeń nad salonem otwarta jest aż do dachu, co daje uczucie oddechu. Dodatkowym atutem jest duży taras, który można dowolnie zagospodarować.Domy budujemy na podstawie indywidualnych projektów, powyższa oferta jest propozycją!
Przedstawiona oferta ma charakter informacyjny, nie stanowi oferty handlowej w rozumieniu Art.66 Kodeksu Cywilnego. Przedstawiony projekt jest własnością Firmy BARTEK. Wszelkie próby kopiowania projektu są zabronione.Zostaw swoje dane - skontaktujemy się z Tobą
Dane techniczne
Konstrukcja
Szkieletowa
Powierzchnia domu netto
109.05 m2
Minimalne wymiary działki
20,2 x 13,8 m
Wymiary zewnętrzne
11 x 7 x 7.7 m
Powierzchnia zabudowy
79.94 m2
Dane ogólne
Czas budowy
2-4 miesiące
Gwarancja
15 lat na konstrukcję budynku
Porównaj stany wykończenia
Pobierz ofertęStan
Do samodzielnego montażu
Cena od
51000 zł
+23% VAT
Stan
Surowy otwarty
Cena od
106000 zł
+8% VAT
Stan
Surowy zamknięty
Cena od
293000 zł
+8% VAT
Stan
Deweloperski
Cena od
416000 zł
+8% VAT
Rzuty
Lista Pomieszczeń
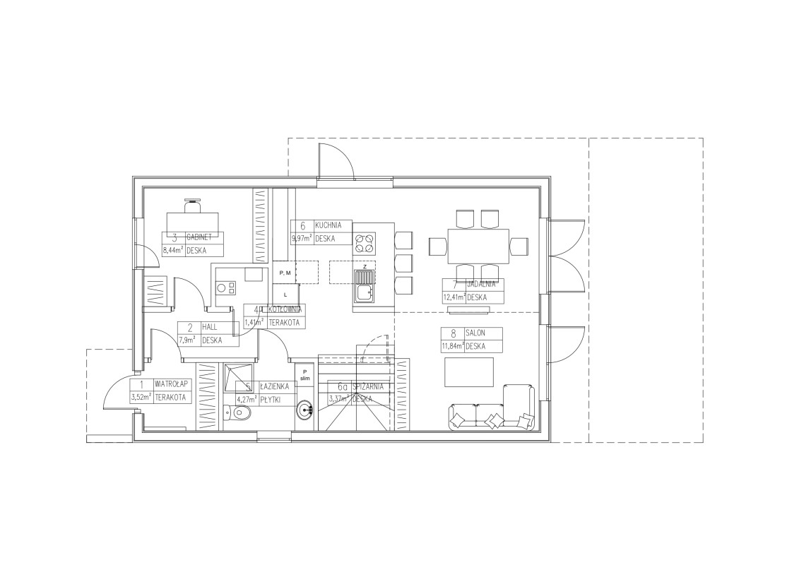
Parter
1. Wiatrołap 3,52m2
2. Hall 7,9m2
3. Gabinet 8,44m2
4. Kotłownia 1,41m2
5. Łazienka 4,27m2
6. Kuchnia 9,97m2
6a. Spiżarnia 3,37m2
7. Jadalnia 12,41m2
8. Salon 11,84m2
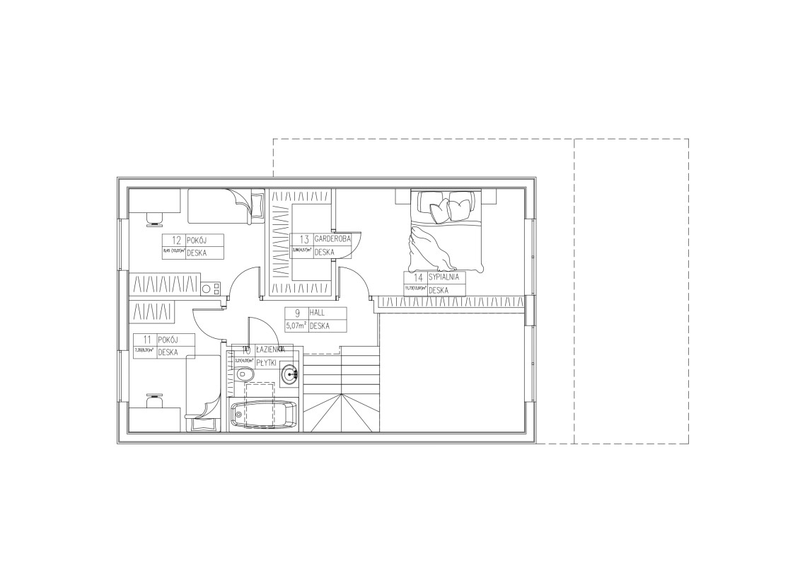
Poddasze
9. Hall 5,07m2
10. Łazienka 3,21 (4,05)m2
11. Pokój 7,35 (8,31)m2
12. Pokój 8,45 (10,01)m2
13. Garderoba 3,86 (4,57)m2
14. Sypialnia 11,73 (13,91)m2


