Rumiankowo

Dom całoroczny z bali drewnianych Rumiankowo
Opis projektu:
Rumiankowo ma klasyczną bryłę na planie prostokąta, która doskonale prezentować się będzie na zalesionych działkach. W elewacji frontowej jest jedna centralnie umiejscowiona lukarna, która dodaje domkowi sporo uroku. W elewacjach bocznych rozmieściliśmy okna doświetlające pomieszczenia na parterze i poddaszu. W elewacji ogrodowej jest wyjście na niewielki taras. Projekt do realizacji potrzebuje działki o szerokości minimum 17.60 m.Domy budujemy na podstawie indywidualnych projektów, powyższa oferta jest propozycją!
Przedstawiona oferta ma charakter informacyjny, nie stanowi oferty handlowej w rozumieniu Art.66 Kodeksu Cywilnego. Przedstawiony projekt jest własnością biura projektowego, z którym współpracujemy.Zostaw swoje dane - skontaktujemy się z Tobą
Dane techniczne
Konstrukcja
Bal lity sosnowy 12 x 20 cm
Powierzchnia domu netto
160.52 m2
Minimalne wymiary działki
19,3 x 14,5 m
Wymiary zewnętrzne
11.3 x 8.5 x 8.18 m
Powierzchnia zabudowy
96.05 m2
Dane ogólne
Czas budowy
2-4 miesiące
Gwarancja
10 lat na konstrukcję budynku
Porównaj stany wykończenia
Pobierz ofertęStan
Do samodzielnego montażu
Cena od
165000 zł
+23% VAT
Stan
Surowy otwarty
Cena od
235500 zł
+8% VAT
Stan
Surowy zamknięty
Cena od
398000 zł
+8% VAT
Stan
Deweloperski
Cena od
597000 zł
+8% VAT
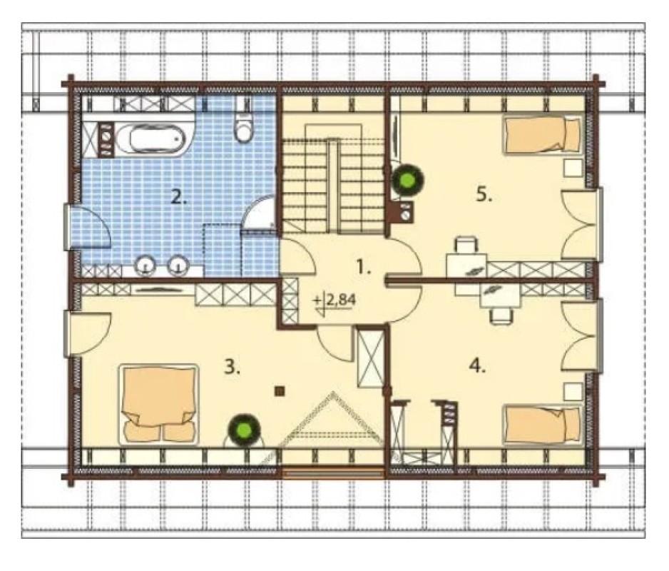
Rzuty
Lista Pomieszczeń
Parter
1. Przedpokój 3,3m2
2. Hall + schody 23,45m2
3. Kuchnia 7,82m2
4. Spiżarka 3,46m2
5. Pokój dzienny 21,22m2
6. Kotłownia 12,27m2
7. Łazienka 44,67m2
8. Pokój 11,68m2
Poddasze
1. Hall 4,29m2
2. Łazienka 12,82 (16,10)m2
3. Pokój 17,36 (19,89)m2
4. Pokój 12,81 (16,19)m2
5. Pokój 12,81 (16,18)m2