Tomaszewo Średnie

Dom całoroczny z bali drewnianych Chmielów Tomaszewo Średnie
Opis projektu:
Dom z bali drewnianych. Podpiwniczony. Na parterze duży salon z kuchnią, kominkiem oraz wyjściem na duży, częściowo zadaszony taras. Pokój, łazienka, spiżarka. Na poddaszu dwa pokoje, łazienka, antresola. W podpiwniczeniu garaż, dwie piwnice, pomieszczenie gospodarcze oraz kotłownia. Zwarta bryła budynku oraz dach dwuspadowy sprzyjają szybkiej i taniej budowie oraz niskim kosztom eksploatacji.Domy budujemy na podstawie indywidualnych projektów, powyższa oferta jest propozycją!
Przedstawiona oferta ma charakter informacyjny, nie stanowi oferty handlowej w rozumieniu Art.66 Kodeksu Cywilnego. Przedstawiony projekt jest własnością biura projektowego, z którym współpracujemy.Zostaw swoje dane - skontaktujemy się z Tobą
Dane techniczne
Konstrukcja
Bal klejony świerkowy 20 x 20 cm
Powierzchnia domu netto
247.44 m2
Minimalne wymiary działki
18,5 x 19,5 m
Wymiary zewnętrzne
11.5 x 9.5 x 7.85 m
Powierzchnia zabudowy
109.25 m2
Dane ogólne
Czas budowy
1-3 miesiące
Gwarancja
10 lat na konstrukcję budynku
Porównaj stany wykończenia
Pobierz ofertęStan
Do samodzielnego montażu
Cena od
192000 zł
+23% VAT
Stan
Surowy otwarty
Cena od
270000 zł
+8% VAT
Stan
Surowy zamknięty
Cena od
513000 zł
+8% VAT
Stan
Deweloperski
Cena od
737000 zł
+8% VAT
Rzuty
Lista Pomieszczeń
Parter
1. Pokój dzienny 49,52m2
2. Kuchnia 14,4m2
3. Spiżarnia 3,01m2
4. Łazienka 10,01m2
5. Pokój 14,04m2
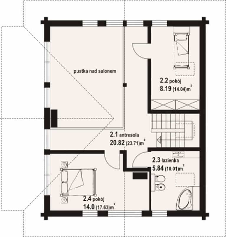
Poddasze
1. Antresola 20,82 (23,71)m2
2. Pokój 8,19 (14,04)m2
3. Łazienka 5,84 (10,01)m2
4. Pokój 14 (17,63)m2