Z101D


Dom całoroczny w konstrukcji szkieletowej Z101D
Opis projektu:
Projekt domu Z101 to projekt funkcjonalny i tani w budowie ze względu na prostą konstrukcję dachu. Optymalny kąt nachylenia dachu oraz wyższa ścianka kolankowa pozwalają zagospodarować poddasze na 3 pokoje oraz wygodną łazienkę. Kolejnym atutem są gabaryty domu ( pow. 120m2). Funkcjonalne rozwiązanie układu pomieszczeń sprawia, że każdy m2, jest optymalnie wykorzystany. Dom ma wszystko na swoim miejscu: sień z miejscem na pojemną szafę a nawet garderobę, wc z miejscem na pralkę i natrysk, dużą spiżarnię z dostępem z kuchni oraz uroczy wykusz na jadalnię. Pomieszczenie gospodarcze zlokalizowane jest w optymalnym miejscu aby dom miał jeden komin dzięki temu ograniczamy koszty budowy. Na poddaszu mamy do dyspozycji trzy pokoje, które maja jedną wspólną łazienkę. Jest możliwość wykonania balkonu łączącego dwa pokoje.Domy budujemy na podstawie indywidualnych projektów, powyższa oferta jest propozycją!
Przedstawiona oferta ma charakter informacyjny, nie stanowi oferty handlowej w rozumieniu Art.66 Kodeksu Cywilnego. Przedstawiony projekt jest własnością biura projektowego, z którym współpracujemy.Zostaw swoje dane - skontaktujemy się z Tobą
Dane techniczne
Konstrukcja
Szkieletowa
Powierzchnia domu netto
121.5 m2
Minimalne wymiary działki
17,02 x 15,82 m
Wymiary zewnętrzne
10.02 x 7.82 x 7.35 m
Powierzchnia zabudowy
75 m2
Dane ogólne
Czas budowy
2-4 miesiące
Gwarancja
15 lat na konstrukcję budynku
Porównaj stany wykończenia
Pobierz ofertęStan
Do samodzielnego montażu
Cena od
54000 zł
+23% VAT
Stan
Surowy otwarty
Cena od
109000 zł
+8% VAT
Stan
Surowy zamknięty
Cena od
285000 zł
+8% VAT
Stan
Deweloperski
Cena od
419000 zł
+8% VAT
Rzuty
Lista Pomieszczeń
Parter
1. Wiatrołap 4,8m2
2. Komunikacja 3,1m2
3. Łazienka 2,7m2
4. Pokój 12,1m2
5. Salon 26,7m2
6. Kuchnia 7m2
7. Kotłownia 3,9m2
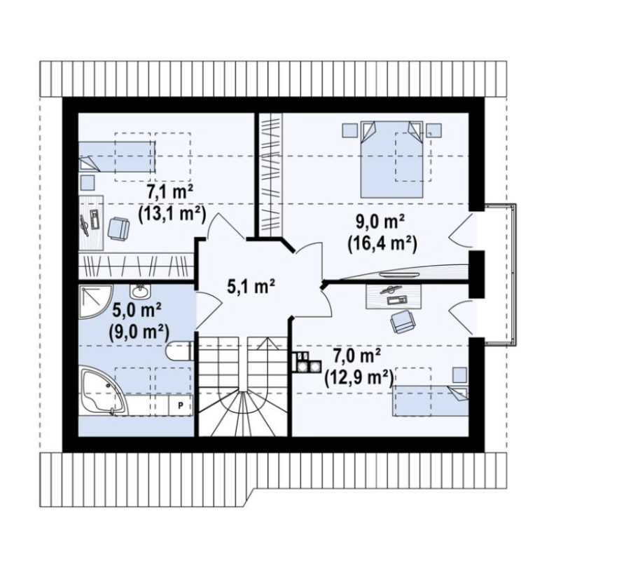
Poddasze
1. Pokój 7,1 (13,2)m2
2. Pokój 9 (16,4)m2
3. Pokój 7 (12,9)m2
4. Łazienka 5 (9)m2
5. Komunikacja 5,1m2

