Zawoja Mk31


Dom całoroczny w konstrukcji szkieletowej Zawoja MK31
Opis projektu:
Zawoja mk 31 to projekt domu z poddaszem użytkowym o powierzchni blisko 100 m², stworzony z myślą o 4-5 osobowej rodzinie. Jego prosta bryła przykryta dwuspadowym dachem nawiązuje do tradycyjnej architektury, co czyni go nie tylko ponadczasowym, ale również ekonomicznym w budowie i późniejszej eksploatacji. To idealna propozycja dla osób poszukujących funkcjonalnego i przytulnego domu w klasycznym stylu. Zwarta bryła budynku i dach dwuspadowy sprzyjają szybkiej i taniej budowie i niskim kosztom eksploatacji. Dom oferuje 99,88 m² starannie zaplanowanej powierzchni użytkowej. Wewnątrz znajdują się łącznie 4 pokoje oraz 2 łazienki, co zapewnia komfortowe warunki dla całej rodziny. Wnętrze zostało logicznie podzielone na strefy funkcjonalne rozmieszczone na dwóch kondygnacjach. Projekt oferuje Pokój dzienny z jadalnią u kuchnią, pokój gościnny, 2 łazienki i 3 sypialnie.Domy budujemy na podstawie indywidualnych projektów, powyższa oferta jest propozycją!
Przedstawiona oferta ma charakter informacyjny, nie stanowi oferty handlowej w rozumieniu Art.66 Kodeksu Cywilnego. Przedstawiony projekt jest własnością biura projektowego, z którym współpracujemy.Zostaw swoje dane - skontaktujemy się z Tobą
Dane techniczne
Konstrukcja
Szkieletowa
Powierzchnia domu netto
123.34 m2
Minimalne wymiary działki
17 x 20,8 m
Wymiary zewnętrzne
13.8 x 9.19 x 7.47 m
Powierzchnia zabudowy
83.7 m2
Dane ogólne
Czas budowy
1-3 miesiące
Gwarancja
15 lat na konstrukcję budynku
Porównaj stany wykończenia
Pobierz ofertęStan
Do samodzielnego montażu
Cena od
59500 zł
+23% VAT
Stan
Surowy otwarty
Cena od
120500 zł
+8% VAT
Stan
Surowy zamknięty
Cena od
304000 zł
+8% VAT
Stan
Deweloperski
Cena od
426000 zł
+8% VAT
Rzuty
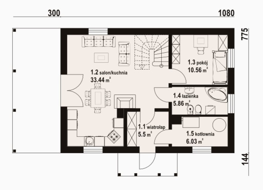
Lista Pomieszczeń
Parter
1. Wiatrołap 5,5m2
2. Pokój dzienny + jadalnia + kuchnia 33,44m2
3. Pokój 10,56m2
4. Łazienka 5,86m2
5. Kotłownia 6,03m2
Poddasze
1. Korytarz 4,86 (5)m2
2. Pokój 19,11 (26,81)m2
3. Łazienka 3,75 (6,17)m2
4. Pokój 8,23 (11,79)m2
5. Pokój 8,58 (12,18)m2

