Zawojowo dw A5

Dom całoroczny z bali drewnianych Zawojowo dw a5
Opis projektu:
Dom z bali. Na parterze salon z aneksem kuchennym, wyjściem na taras i schodami na poddasze. Pokój, wiatrołap, kotłownia, łazienka. Na poddaszu cztery pokoje, łazienka, komunikacja, dwa balkony. Zwarta bryła budynku oraz dach dwuspadowy sprzyjają szybkiej i taniej budowie oraz niskim kosztom eksploatacjiDomy budujemy na podstawie indywidualnych projektów, powyższa oferta jest propozycją!
Przedstawiona oferta ma charakter informacyjny, nie stanowi oferty handlowej w rozumieniu Art.66 Kodeksu Cywilnego. Przedstawiony projekt jest własnością biura projektowego, z którym współpracujemy.Zostaw swoje dane - skontaktujemy się z Tobą
Dane techniczne
Konstrukcja
Bal lity sosnowy 12 x 20 cm
Powierzchnia domu netto
129.05 m2
Minimalne wymiary działki
18,55 x 19,1 m
Wymiary zewnętrzne
11.89 x 11.25 x 8.02 m
Powierzchnia zabudowy
83.46 m2
Dane ogólne
Czas budowy
1-4 miesiące
Gwarancja
15 lat na konstrukcję budynku
Porównaj stany wykończenia
Pobierz ofertęStan
Do samodzielnego montażu
Cena od
162000 zł
+23% VAT
Stan
Surowy otwarty
Cena od
230000 zł
+8% VAT
Stan
Surowy zamknięty
Cena od
409000 zł
+8% VAT
Stan
Deweloperski
Cena od
590000 zł
+8% VAT
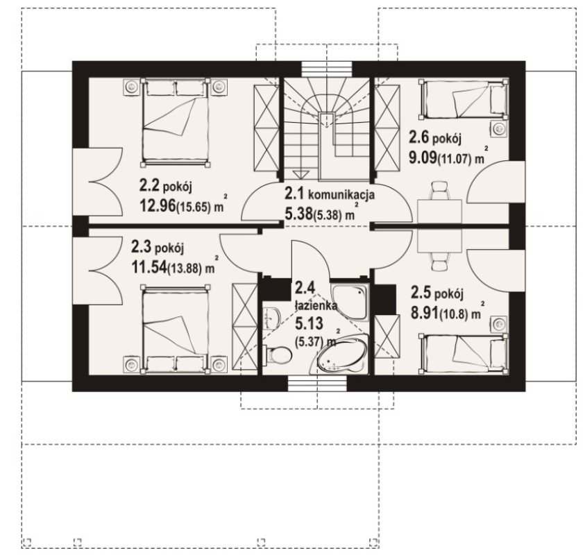
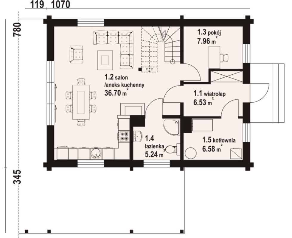
Rzuty
Lista Pomieszczeń
Parter
1. Wiatrołap 6,53m2
2. Pokój dzienny + jadalnia + kuchnia 36,7m2
3. Pokój 7,96m2
4. Łazienka 5,24m2
5. Kotłownia 6,58m2
Poddasze
1. Korytarz 5,38m2
2. Pokój 12,96 (15,65)m2
3. Pokój 11,54 (13,88)m2
4. Łazienka 5,13 (5,37)m2
5. Pokój 8,91 (10,8)m2
6. Pokój 9,09 (11,07)m2