Blockhaus aus Holz für das ganze Jahr
Chmielów Sosenka 4
Beschreibung des Projekts:
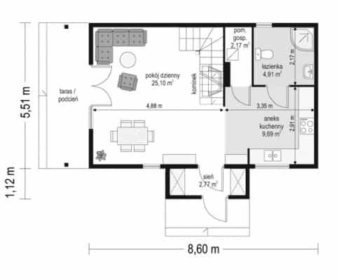
Das Hausprojekt Sosenka 4 wurde nach dem Vorbild des beliebten Projekts Sosenka erstellt. Im Gegensatz zur Basisversion hat das Projekt eine größere Fläche. Projekt des Hauses Sosenka 4 geeignet für die Realisierung auf einem mittelgroßen Grundstück. Das Haus zeichnet sich durch eine typische Massivbauweise aus, die den Bauprozess erheblich erleichtert. Das Projekt gehört zu der Kategorie von Häusern, deren First parallel zur Straße ausgerichtet ist, was für die Erschließungsbedingungen sehr wichtig ist. Es ist für freistehende Häuser konzipiert. Das Projekt ist ein idealer Vorschlag für diejenigen, die sich für ein Haus mit einem geneigten Dach interessieren, das erhebliche Einsparungen ermöglicht. Das Projekt richtet sich insbesondere an Personen mit einem Grundstück mit Zugang von Süden. Bei dem Projekt Sosenka 4 handelt es sich um ein eingeschossiges Haus mit nutzbarem Dachgeschoss, was bedeutet, dass die Nutzfläche nicht durch die Größe des Grundstücks begrenzt ist. Der im Projekt enthaltene Wohnbereich wird sicherlich diejenigen zufriedenstellen, die gerne gemeinsame Momente mit ihren Familien genießen. Der Autor des Projekts sah eine offene Küche vor, die den Innenraum geräumiger macht. Der Kamin im Wohnzimmer sieht nicht nur gut aus, sondern spendet auch angenehme Wärme an kälteren Tagen. Ein komfortables Badezimmer befindet sich ebenfalls im Erdgeschoss. Zwei komfortable Zimmer genügen den Bedürfnissen einer Familie mit 2-4 Personen. Der Raum kann auch als Gästezimmer oder Arbeitszimmer genutzt werden. Auch an Platz für einen praktischen Hauswirtschaftsraum mangelt es dem Haus nicht. Die vom Architekten empfohlene Holzrahmenbauweise gewährleistet eine kurze Bauzeit. Sosenka 4 ist ein hervorragender Vorschlag für Investoren, die ein traditionelles Haus suchen, das unabhängig von der Umgebung großartig aussehen wird.
Wir bauen Häuser auf der Grundlage individueller Projekte, das obige Angebot ist ein Vorschlag!
Das vorliegende Angebot dient nur zu Informationszwecken und stellt kein Angebot im Sinne von Art. 66 des Bürgerlichen Gesetzbuches dar.
Die auf unserer Website vorgestellten Projekte sind Eigentum der Planungsbüros, mit denen wir zusammenarbeiten.
Technische Daten:
Konstruktion: 12 x 20 cm Massivholz
Außenabmessungen: 8,6 x 5,51 x 6,68 m
Nettogrundfläche des Hauses: 63,32 m2
Eingebauter Bereich:51,28 m2
Mindestgröße des Grundstücks:16,66 x 14,63 m
Allgemeine Daten:
Bauzeit: 1-3 Monate
Garantie: 10 Jahre für die Gebäudestruktur
Projektionen
Preis von
2 295
zł/m2
offene Schale
Das Angebot herunterladen
Hinterlassen Sie Ihre Daten - wir werden Sie innerhalb von 48 Stunden kontaktieren