Hus upp till 35 m2 i ramkonstruktion Bartek S35+ för självmontering
Projektbeskrivning:
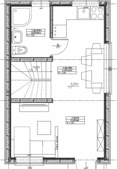
Bartek S35-projektet är en originalkonstruktion av vårt företag. Det kan användas som åretrunthus, semesterbostad eller för uthyrning. Huset har ett vardagsrum, kök, badrum och 2 sovrum. Trots sin ringa storlek har byggnaden plats för upp till 6 personer.
Vi bygger hus på basis av individuella projekt, ovanstående erbjudande är ett förslag!
Det här erbjudandet är endast avsett för informationsändamål och utgör inte ett erbjudande i den mening som avses i artikel 66 i civillagen.
Det presenterade projektet tillhör BARTEK Company och alla rättigheter till projektet är förbehållna.
Tekniska data:
Byggnad: Ram
Yttre mått: 7,32 x 4,7 x 5,94 m.
Husets nettoarea: 47 m2
Inbyggt område:34,4 m2
Minsta tomtstorlek:15,32 x 11,7 m
Allmänna uppgifter:
Produktionstid: 3 månader
Garanti: 15 år för byggnadsstrukturen
Prognoser
Pris från
24 000
zł/m2
För husets bärande konstruktion
Ladda ner erbjudandet
Lämna dina uppgifter - vi kontaktar dig inom 48 timmar.