Mini IV åretrunthus för självmontering i ramkonstruktion
Projektbeskrivning:
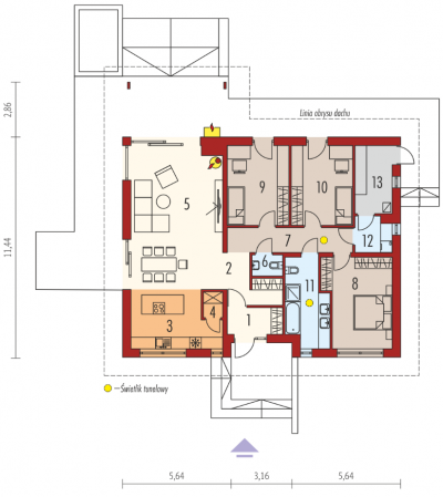
Mini 4 v. II är ett ekonomiskt hus i konstruktion som på ett perfekt sätt kombinerar energieffektiv arkitektur med eleganta detaljer. Den bekväma interiören med en utmärkt uppdelning av funktioner ger hushållsmedlemmarna avskildhet och lämnar utrymme för att umgås tillsammans i vardagsrummet som förlängs med en täckt terrass.
Vi bygger hus utifrån individuella projekt, ovanstående erbjudande är ett förslag!
Det här erbjudandet är endast avsett för informationsändamål och utgör inte ett erbjudande i den mening som avses i artikel 66 i civillagen.
De projekt som presenteras på vår webbplats tillhör de designkontor som vi samarbetar med.
Tekniska data:
Byggnad: Ram
Yttre mått: 14,44 x 11,44 x 6,5 m.
Husets nettogolvyta: 122,9 m2
Inbyggt område:163,7 m2
Minsta tomtstorlek:22,44 x 20,6 m
Allmänna uppgifter:
Produktionstid: 3 månader
Garanti: 15 år för byggnadsstrukturen
Prognoser
Pris från
92 500
zł/m2
För husets bärande konstruktion
Ladda ner erbjudandet
Lämna dina uppgifter - vi kontaktar dig inom 48 timmar.