Projektbeskrivning:
Z211-huset är ett enkelt block med lokal keramikbeklädnad och raffinerade detaljer.
Ovanför ingången till huset har vi ett ljustak i en stålkonstruktion. Från vestibulen kommer vi till hallen som leder till trappan till första våningen och ingången till vardagsrummet, som är kopplat till köket och hallen.
På bottenvåningen finns också ett badrum med dusch och ett gästrum. Bottenvåningen, som är husets vardagsrum, är utformad med stora glasrutor som optiskt förstorar utrymmet och släpper in mycket ljus i huset.
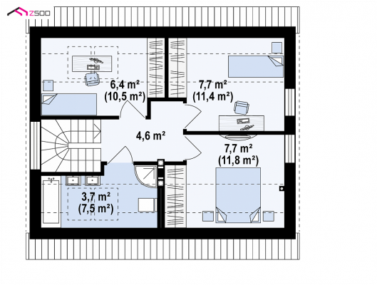
Vindsvåningen är husets nattutrymme med tre rum och ett stort badrum.
Vi bygger hus utifrån individuella projekt, ovanstående erbjudande är ett förslag!
Det här erbjudandet är endast avsett för informationsändamål och utgör inte ett erbjudande i den mening som avses i artikel 66 i civillagen.
De projekt som presenteras på vår webbplats tillhör de designkontor som vi samarbetar med.
Tekniska data:
Byggnad: Ram
Yttre mått: 8,72 x 6,92 x 7,35 m.
Husets nettogolvyta: 95,7 m2
Inbyggt område:60,3 m2
Minsta tomtstorlek:15,72 x 14,92 m
Allmänna uppgifter:
Byggtid: 1-3 månader
Garanti: 15 år för byggnadsstrukturen
Prognoser
Pris från
2 232
zł/m2
Stängt skal
Ladda ner erbjudandet
Lämna dina uppgifter - vi kontaktar dig inom 48 timmar.