Projektbeskrivning:
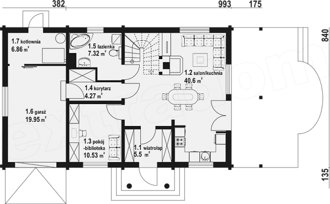
Huset Milicz dw är ett idealiskt förslag för personer med en medelstor tomt. Huset kännetecknas av en enkel konstruktion, så det kommer att se bra ut oavsett omgivningen. Projektet hör till kategorin hus med en nock parallellt med vägen, vilket är viktigt med tanke på de krav som anges i områdesplanen. Projektet har utformats för tomter som gör det möjligt att placera huset som ett fristående hus. I projektet ingår ett enkelt garage i byggnadslinjen. Det är också ett intressant förslag för dem som vill ha ett hus med sadeltak, och det är ekonomiskt och tar inte mycket tid att göra spantramen och dess täckning. Projekt Milicz dw är ett envåningshus med en användbar vind, vilket gör att bostads- och sovutrymmena är tydligt åtskilda.
Vi bygger hus på basis av individuella projekt, ovanstående erbjudande är ett förslag!
Det här erbjudandet är endast avsett för informationsändamål och utgör inte ett erbjudande i den mening som avses i artikel 66 i civillagen.
De projekt som presenteras på vår webbplats tillhör de designkontor som vi samarbetar med.
Tekniska data:
Struktur: massiv furustock 16 x 20 cm.
Yttre mått: 15,5 x 9,75 x 7,83 m.
Husets nettogolvyta: 191,1 m2
Inbyggt område:115,78 m2
Minsta tomtstorlek:21,75 x 16,4 m
Allmänna uppgifter:
Byggtid: 2-4 månader
Garanti: 10 år för byggnadsstrukturen
Prognoser
Pris från
2 115
zł/m2
Öppet skal
Ladda ner erbjudandet
Lämna dina uppgifter - vi kontaktar dig inom 48 timmar.