Projektbeskrivning:
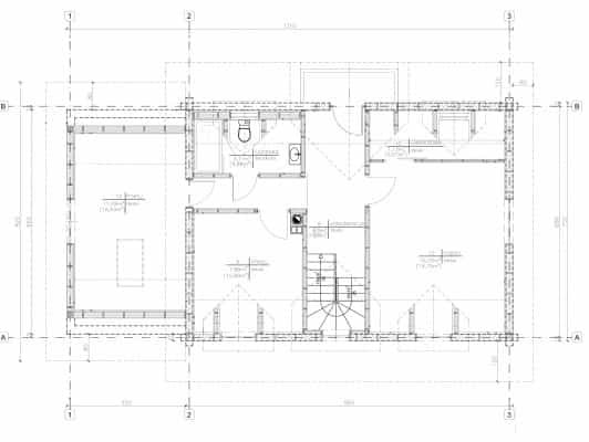
Ett idealiskt hus av timmer i traditionell masurisk stil. Det kan byggas som ett sommarhus eller som ett året runt-hus. Trots sin ringa storlek kan byggnaden rymma upp till 11 personer. Den har 4 sovrum, ett omklädningsrum, 2 badrum, ett kök med vardagsrum, ett garage och en terrass.
Vi bygger hus på basis av individuella projekt, ovanstående erbjudande är ett förslag!
Det här erbjudandet är endast avsett för informationsändamål och utgör inte ett erbjudande i den mening som avses i artikel 66 i civillagen.
De projekt som presenteras på vår webbplats tillhör de designkontor som vi samarbetar med.
Tekniska data:
Konstruktion: Massiv furustock 16 x 20 cm.
Yttre mått: 13,2 x 7 x 7,3 m.
Husets nettogolvyta: 140,5 m2
Inbyggd yta: 92,4 m2
Minsta tomtstorlek:21,2 x 15 m
Allmänna uppgifter:
Byggtid: 1-4 månader
Garanti: 15 år för byggnadsstrukturen
Prognoser
Pris från
2 170
zł/m2
Öppet skal
Ladda ner erbjudandet
Lämna dina uppgifter - vi kontaktar dig inom 48 timmar.