Projektbeskrivning:
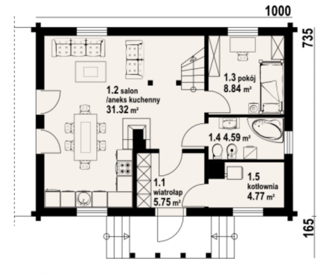
Timmerhus i timmer . Det yttre utseendet är en hänvisning till traditionen för höglandshus, medan den funktionella utformningen inuti är modern. 5 rum, 2 badrum, pannrum. Vardagsrum med pentry, öppen spis, trappor till vinden och tillgång till terrassen. Rum, badrum, förrum, pannrum. På vinden finns 3 rum och ett badrum. Bostadshus som också kan vara ett semesterhus
Vi bygger hus på basis av individuella projekt, ovanstående erbjudande är ett förslag!
Det här erbjudandet är endast avsett för informationsändamål och utgör inte ett erbjudande i den mening som avses i artikel 66 i civillagen.
De projekt som presenteras på vår webbplats tillhör de designkontor som vi samarbetar med.
Tekniska data:
Konstruktion: Massiv furustock 12 x 20 cm.
Yttre mått: 10 x 9 x 7,95 m.
Husets nettogolvyta: 115,3 m2
Inbyggt område:78,82 m2
Minsta tomtstorlek:18,2 x 16,5 m
Allmänna uppgifter:
Byggtid: 1-4 månader
Garanti: 15 år för byggnadsstrukturen
Prognoser
Pris från
2 225
zł/m2
Öppet skal
Ladda ner erbjudandet
Lämna dina uppgifter - vi kontaktar dig inom 48 timmar.