Kolejny autorski projekt firmy Bartek. Jest to projekt dostosowany do aktualnych potrzeb naszych klientów. Tradacyjna konstrukcja wykonana z bali prostokątnych w nowoczesnych stylu z zachowaniem nutki tradycyjności.
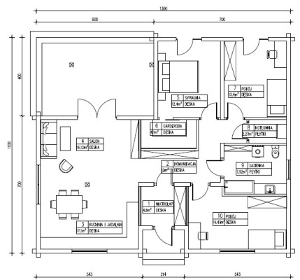
Projetk Bartek B101 posiada salon z aneksem kuchennym, sypialnie z garderobą, 2 pokoje, lazienkę, kotłownię oraz wiatrołap.
Domy budujemy na podstawie indywidualnych projektów, powyższa oferta jest propozycją!
Przedstawiona oferta ma charakter informacyjny, nie stanowi oferty handlowej w rozumieniu Art.66 Kodeksu Cywilnego
Przedstawione projekty na naszej stronie są właśnością biur projektowych, z którymi współpracujemy.
Dane techniczne:
Konstrukcja:
Bal lity sosnowy 12 x 20 cm
Wymiary zewnętrzne
13 x 11 x 5,95 m
Powierzchnia domu netto:
101,34 m2
Powierzchnia zabudowy:
143 m2
Minimalne wymiary działki:
21 x 19 m
Dane ogólne:
Czas budowy:
1-3 miesiące
Gwarancja:
10 lat na konstrukcję budynku
Rzuty
Cena od
2 280
zł/m2
W stanie surowym otwartym
Pobierz ofertę
Zostaw swoje dane - skontaktujemy się z Tobą w ciągu 48 godzin