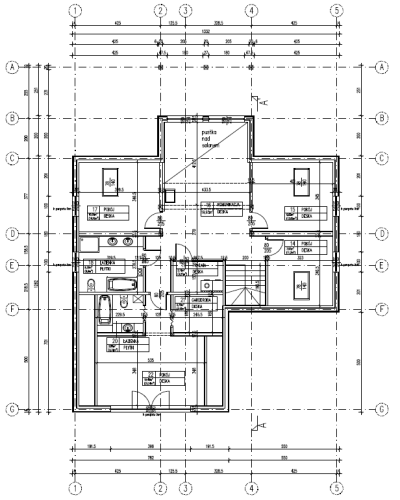
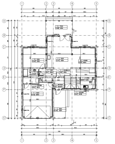
Bartek B217 to autorski projekt "szefostwa". Jest to projekt dostosowany dla dużej rodziny 2+3 ceniącej sobie przestrzeń. Dom wykonany z bali prostokątnych w tradycyjnym stylu z nutką nowocześnoci skandynawskiego stylu.
Projetk Bartek B217 posiada salon (z antresolą), jadalnię, pokój gościnny, garaż na 2 samochody, spiżarnie, schowek, sypialnie z własną lazienką i garderobą, 3 pokoje, 2 lazienki, pralnie, kotłownię, wiatrołap oraz 2 tarasy - wejściowy oraz od podwórza.
| Konstrukcja: | Bal lity sosnowy 12 x 20 cm |
| Wymiary zewnętrzne | 17,29 x 13,24 x 7,78m |
| Powierzchnia domu netto: | 217 m2 |
| Powierzchnia zabudowy: | 229 m2 |
| Minimalne wymiary działki: | 24,29m x 21,24 m |
| Czas budowy: | 2-4 miesiące |
| Gwarancja: | 10 lat na konstrukcję budynku |
| Fabryka Domów Drewnianych BARTEK Mirosław Bober i Ewa Niewęgłowska ------ ul. Budowlanych 4 21-300 Radzyń Podlaski Pon-Pt 7:30 - 15:30 |
|
| Telefony ------ tel. 83 352 76 86 kom. 571 487 695 |
|
| E-mail ------ biuro@domy-bartek.pl |