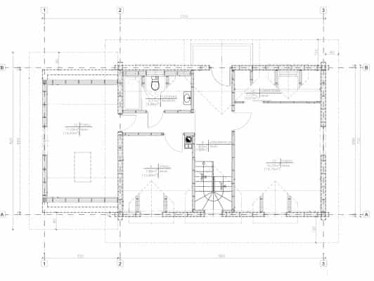
Idealny domwykonany z bali w tradycyjnym mazurskim stylu.Może być wybudowany jako dom letniskowy lub całoroczny. Pomimo niedużego metrażu budynek jest w stanie pomieścić nawet do 11 osób. Znajdują się w nim 4 pokoje sypialniane, garderoba, 2 łazienki, kuchnia z salonem, garaż oraz taras.
Domy budujemy na podstawie indywidualnych projektów, powyższa oferta jest propozycją!
Przedstawiona oferta ma charakter informacyjny, nie stanowi oferty handlowej w rozumieniu Art.66 Kodeksu Cywilnego
Przedstawione projekty na naszej stronie są właśnością biur projektowych, z którymi współpracujemy.
Dane techniczne:
Konstrukcja:
Bal lity sosnowy 12 x 20 cm
Wymiary zewnętrzne
13,2 x 7 x 7,3 m
Powierzchnia domu netto:
140,5 m2
Powierzchnia zabudowy:
92,4 m2
Minimalne wymiary działki:
21,2 x 15 m
Dane ogólne:
Czas budowy:
1-4 miesiące
Gwarancja:
15 lat na konstrukcję budynku
Rzuty
Cena od
1 600
zł/m2
W stanie surowym otwartym
Pobierz ofertę
Zostaw swoje dane - skontaktujemy się z Tobą w ciągu 48 godzin