Project description:
The Z211 house project is a simple body with local ceramic cladding and refined detailing.
Above the entrance to the house we have a light canopy in steel construction. From the vestibule we get to the hallway from which the stairs to the first floor lead, and the entrance to the living room which is spatially connected to the kitchen and the hall.
The first floor also has a bathroom with a shower and a guest room. The first floor, as the living area of the house, was designed with large glazings that optically enlarge the space and let a lot of light into the house.
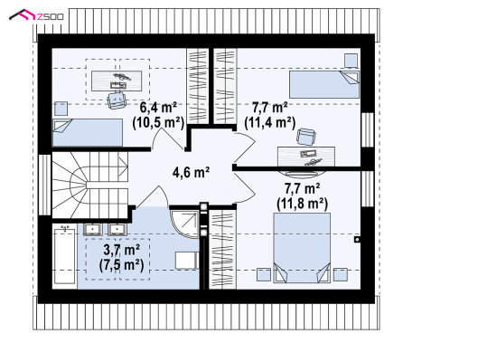
The attic is the night part of the house with three rooms, and a large bathroom.
We build houses based on individual projects, the above offer is a proposal!
The presented offer is for information purposes only, it does not constitute an offer within the meaning of Art.66 of the Civil Code.
The projects presented on our website are the property of the design offices with which we cooperate.
Technical specifications:
Construction: Skeletal
External dimensions: 8.72 x 6.92 x 7.35 m
Net area of the house: 95.7 m2
Built-in area:60,3 m2
Minimum plot dimensions:15.72 x 14.92 m
General data:
Construction time: 1-3 months
Warranty: 15 years for the building structure
Projections
Price from
2 232
zł/m2
In a closed state
Download the offer
Leave your details - we will contact you within 48 hours